학원인테리어, 수원 학원리모델링공사 [50평]
본문
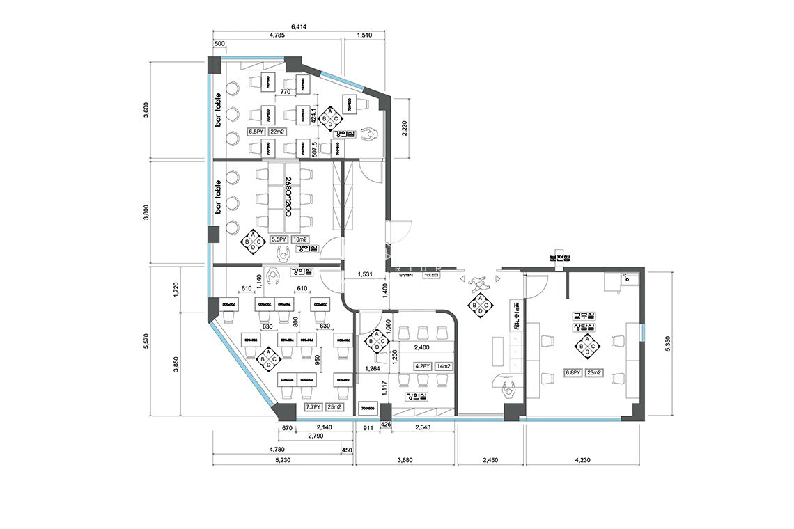
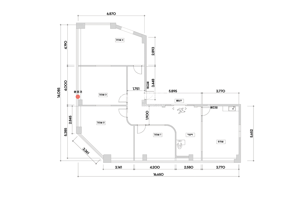
수원 50평 학원 인테리어, 공간 효율 극대화
____________________
이번 포스팅에서는 수원 영통에 위치한 50평 규모의 학원 리모델링 공사 사례를 소개합니다.
기존 3층 당구장을 철거하고 보수하는 작업부터 시작하여, 학원 인테리어로 완벽하게 변신시키는 과정을 담았습니다.
이번 프로젝트는 단순히 공간을 바꾸는 것을 넘어, 학습 효과를 극대화하고 학생들에게 쾌적한 환경을 제공하는 데 중점을 두었습니다.
카운터, 원장실, 4개의 강의실로 구성된 이 공간은 각 공간의 기능적 특성을 고려하여 디자인되었으며,
전체적으로 통일감 있는 분위기를 연출하여 학습 집중도를 높이는 데 기여하도록 설계되었습니다.
학원인테리어 공사완료사진















학원인테리어,학원리모델링,50평학원인테리어,수원학원인테리어,수원인테리어,학원인테리어업체,수원인테리어업체,학원리모델링공사
교습소인테리어ㆍ수원 광교 영어 수학 학원인테리어 교습소 [25평]
![교습소인테리어ㆍ수원 광교 영어 수학 학원인테리어 교습소 [25평] 교습소인테리어ㆍ수원 광교 영어 수학 학원인테리어 교습소 [25평]](http://www.cubedesign.co.kr/data/editor/2110/1d33b42b539024d36f88455d6264fad9_1634174558_6815.jpg)
학원리모델링ㆍ용인 처인구 100평 리모델링 공사

화성 병점 칸막이공사 20평ㆍ미닫이도어 화이트판넬 공사
소형학원인테리어ㆍ광교 15평 영어학원 상가 인테리어

입구파사드공사ㆍ수원 영통 학원 이미지월공사

수원학원리모델링ㆍ인계동 학원 35평 리모델링공사

피부&왁싱샵인테리어ㆍ15평 소형 상가인테리어 [상업공간]
![피부&왁싱샵인테리어ㆍ15평 소형 상가인테리어 [상업공간] 피부&왁싱샵인테리어ㆍ15평 소형 상가인테리어 [상업공간]](https://www.cubedesign.co.kr/data/editor/2508/0436029baed91e44e4af2f4dafc91f88_1755473964_508.jpg)
상가인테리어ㆍ속눈썹샵 뷰티샵 상가인테리어 [60평]
![상가인테리어ㆍ속눈썹샵 뷰티샵 상가인테리어 [60평] 상가인테리어ㆍ속눈썹샵 뷰티샵 상가인테리어 [60평]](https://www.cubedesign.co.kr/data/editor/2507/2c3d30a4835c40dd097733cd4e274f04_1753925999_8158.jpg)
소호사무실인테리어ㆍ무인 사무실 상가 공유오피스인테리어 [50평]
![소호사무실인테리어ㆍ무인 사무실 상가 공유오피스인테리어 [50평] 소호사무실인테리어ㆍ무인 사무실 상가 공유오피스인테리어 [50평]](https://www.cubedesign.co.kr/data/editor/2401/a06f90ec510c909115d3eaf7d3e8ef0e_1705562787_0671.jpg)
사무실인테리어ㆍ수원 광교 에이스광교타워 3차 [복층]
![사무실인테리어ㆍ수원 광교 에이스광교타워 3차 [복층] 사무실인테리어ㆍ수원 광교 에이스광교타워 3차 [복층]](https://www.cubedesign.co.kr/data/editor/2302/dc84e3cfd3c50f4548fe11870e480b7e_1676101034_0373.jpg)
상업상가인테리어ㆍ마라탕 프렌차이즈 인테리어 (30평)

파티션칸막이ㆍ용인하나로마트 상가내 고정 파티션 설치

플랜트박스ㆍ마라탕 맞춤 식물장식 인조조화 제작

부분리모델링ㆍ수원 세류동 상가 부분 보수작업

체인점인테리어ㆍ욜로마라탕 마장점 상가 인테리어 [35평]
![체인점인테리어ㆍ욜로마라탕 마장점 상가 인테리어 [35평] 체인점인테리어ㆍ욜로마라탕 마장점 상가 인테리어 [35평]](http://www.cubedesign.co.kr/data/editor/2211/2198b3d74af76fb7c0d52043a4171dcc_1667893550_39.jpg)
화성 동탄 본점ㆍ큐브디자인, 수원 영통 광교 용인 동탄 기흥 오산 평택 사무실 오피스 회사 사옥 지식산업센터 공장 상가 인테리어공사업체 사무실오피스인테리어 큐브디자인